
麗晶國際236㎡ | 出片率100%!他家的「黑色極簡」成了朋友圈攝影賽爆款
繁忙都市中,高樓如林,猶如一座鋼筋的迷宮。
當白晝的喧囂退場,夜的故事便悄然拉開了序幕。
林立的高樓將燈火灑落室內,像是一片靜謐的星海,溫柔而深邃。
在這片光的帷幕下,我們比任何時候都更需要一方屬于自己的天地,一個能夠安放我們所有情緒的居所。
從一盞燈的色溫,到一面墻的質感,空間每一處細節都是對生活的最高禮贊。




本案這方意式躍層,以利落黑白為基調,融入微水泥、黑色木作柜、巖板、不銹鋼、玻璃等多重材質,構筑豐富的肌理層次。
室內場域借開放式以及挑空設計,把視野打開,將空間尺度放大,打造出大氣、時尚又飽含細節的都市摩登格調。

"
于喧囂之上,
構建一處可眺望、
可沉浸的理想棲所。
"


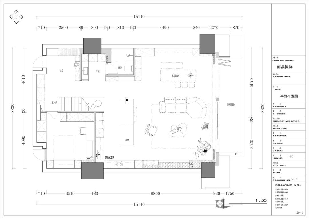
F1
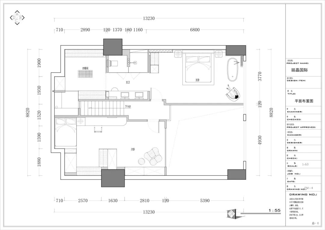
F2

CASE APPRECIATION
▽
Hallway
玄關

玄關沿轉角結構定制豐富的儲物柜,統一的黑色木作為室內鋪墊極簡基調。入門一側設置了換鞋卡座,同步融入靈活的物品掛放區,實用與顏值兼得。

端景臺上,一只labubu安靜佇立,以俏皮趣味點亮歸家時刻,將入戶儀式感悄然升級。
Living Room
客廳

光是這個家中當之無愧的主角。白晝,陽光慷慨涌入,使居室浸潤在無限溫柔之中;夜晚,華燈初上、車流如織,繪就一幅美輪美奐的都市畫卷。


客廳運用挑空設計與極簡線條延展空間尺度,黑白色賦予利落而深邃的氣場。無論是閱讀一本好書、聆聽一曲爵士,亦或只是靜靜凝視窗外美景,這方空間都能提供恰到好處的氛圍。

向上延伸的電視背景墻以大面積巖板鋪就,富于視覺張力,與家具也有一個巧妙的呼應。墻面與家具在肌理、色調上的默契配合,進一步強化空間的統一感。

二樓開一扇小窗面向客廳,既平衡了深淺視覺,又為上下層空間塑造出獨特而有趣的對話體驗。


客廳軟裝選配黑色花瓣沙發,搭配寶格麗大理石茶幾,低調中透露著精致感,空間揚起時尚小資的氛圍,家也儼然化身為自媒體的出片現場。自然光在空間中自由流動,模糊功能與美學的界限;不拘一格的布局,讓每一處角落都成為可被觀賞的風景。
Dining Room
餐廳


臨近陽臺向光側的還有餐廳區域。餐廳不只是用餐空間,更融合了小酌、咖啡、輕食、聚餐等多重可能,無論獨處亦或party,不同的狀態、不同的心境,皆可在此處盡情綻放。

客餐廚之間不再是獨立的模塊,而是連貫成一體的高功能性場景。設計深度回應著都市人的工作、生活節奏,在不同區域的開放交融中,滿足社交聚會和自我療愈的雙向需求。
Kitchen
廚房


視線來到客廳的另一側——開放式廚房區域。
統一的色調構筑讓視覺轉換無比流暢,上層使用玻璃隔斷面,玻璃的透光性也讓整體挑空區的尺度與層次得到進一步延展。


廚區的立柱包裹銀色金屬飾面,黑色巖板島臺質感高級,線條干凈利落。隱形暖色燈光自縫隙間灑落,勾勒出材質邊界,點亮黑與銀的碰撞,營造別具一格的工業美學。


櫥柜選用銀色PET門板,嵌入式廚電與柜體相融,金屬質感、科技氛圍交織,共同構筑出一個未來感十足的廚房界面。這里不僅是烹飪的空間,更成為了彰顯審美與品質的舞臺。
Stairs
樓梯


樓梯采用黑色踏步搭配玻璃扶手,制造輕盈懸浮的效果,極富高級感。設計同步考量行走體驗——踏步燈形成具有序列感的節奏,建筑自身的結構、體塊與線條組合,打造極具藝術感的室內景觀。
Bedroom
臥室


二層主臥延續了低奢黑白色調,更于窗邊置入亞克力浴缸,搭配羅馬簾,輕松營造優雅、愜意的酒店式氛圍。

床頭背景墻設計統一的黑色格柵飾面,兼具實用收納與立體造型。下方組合壁紙,于簡約中勾勒層次細節。黑色床品、床頭柜,進一步烘托低調沉靜之感。




精心設計的浴缸角落,是對生活之美最溫柔的贊頌。它脫離庸常,將功能升華為儀式,并就此展開獨屬于個人的想象和敘事。當夜色漸沉,高樓大廈的燈光悄然漫入,只需閉上雙眼,感受水流輕撫肌膚,仿佛就能聆聽到內心與世界的對話...


次臥是給家中小公主準備的房間,以彈性設計為理念,將寬敞的空間依序劃分為睡眠區、儲物區、學習區和休閑區。里側做地臺床,搭配波浪造型軟包,細膩柔軟,營造極舒適的包裹感。
Bathroom
衛生間


主次衛均采用干濕分離布局,延續室內大量巖板材質的運用,進一步強化現代意式風格的秩序美學。完整流暢的設計力加持下,衛浴空間也不再是隱蔽的功能角落,而是融入進整體居住美學的有機組成部分。
P.I. 項目信息
項目名稱:麗晶國際
設計風格:意式極簡
項目類型:躍層
項目地點:中國 · 杭州
項目面積:236㎡
項目服務:設計·施工·硬裝·軟裝 全案設計
設計單位:浙江南鴻裝飾
施工單位:浙江南鴻裝飾
免費
免費申請戶型規劃
專屬設計師免費1對1全程服務
已經有3776人申請
24小時免費咨詢電話
400-8800-618
你家預算
108080元